×

成都站 [ 切换 ]
在线咨询
一键报价
最新活动
线下门店
一键报价
已有6位业主获得预约
测试测试 131****5654 已成功预约
测试蒙自 131****5654 已成功预约
朱先生 182****9158 已成功预约
张先生 153****3130 已成功预约
李兵 133****9182 已成功预约
戴先生 153****8997 已成功预约
线下门店
联系电话:0871-63390129
昆明总部

地址:昆明市西山区广福路辅路中天融域2期写字楼24幢一单元8楼

广福分公司

地址:昆明市官渡区广福路天盾广场B座5楼

滇池分公司

地址:昆明市西山区滇池度假区华夏广场1栋办公楼

蒙自分公司

地址:红河哈尼彝族自治州蒙自市文澜街道天马路81号银苑小区3-1商铺

预约设计师
快速预约热线: 0871-63390129
预约楼盘参观
快速预约热线: 0871-63390129
企业动态
Enterprise dynamics
长桥左岸600㎡ 新中式别墅 | 书香雅居,宁静桃源
分享:
发布时间:2025-04-25 浏览:133

◂ 600㎡ 新中式 ▸

Design by 许海峰

设计师说

本案的居住者是三代同堂,一家六口,对卧室的数量需求较多,要考虑到孩子学习娱乐的空间;业主喜欢阅读,喜欢中式的设计风格,但要有舒适感和设计感,格外珍视与家人之间的共处时光,希望家能成为温暖的乌托邦,自在松弛,承载一家人的欢笑与成长。

三代同堂的家,设计师倾听每一代人的需求,遵循生活的行迹,从“家的温馨”与“人的互动”出发重构空间。提取当代美学符号与传统中式元素,以新中式为笔触,用木与灰的经典碰撞,进一步提升空间的质感和氛围,融入自然山水、木饰面、中式家具等精致细节,以纯粹的态度演绎居者对生活的要求和理解,既满足了一家人的功能需求,又呈现出一个充满闲适意境与自在雅趣的理想家。

设计方案

房屋是600㎡别墅,整体分为地下一层及地上三层,根据业主的基础需求,将房屋最大限度的利用,设计了主要生活空间、休闲区、健身区、影音室、休憩空间等,补充生活的更多可能性。

-1F

宁静 放松

时间 在此静静流淌


① 拆除墙体,增加了一间卧室,完善居住功能;   

② 合理利用空间,设计了家庭影音室,满足观影需求。

01.影 音 室

空间在大地色系与光源渲染的融合中,传递出“沉浸”的情绪张力。珍珠绒云朵沙发与异形边几搭配,在保留实用功能的同时增添优雅;简洁利落的线条设计,陈设线灯提升氛围感,在满足日常观影需求的基础上,打造出一个兼具治愈效果与惬意生活的最佳场所。

02.次 卧 室

木饰面搭配高级灰,流露出一份清雅淡然的空间气质,圆润线条更为灵动,与氛围感灯线相互衬托,沉淀出睡眠环境的温馨和舒缓。


1F

流光伴居

承载欢笑与成长的意趣

① 进门处规划了入户庭院,增添归家仪式感;

② 拆除墙体,调整餐厨位置,改造为开放式餐厨,与新建岛台形成便捷的生活动线,满足多元烹饪功能。

01.入 户

以礼为序,归家的每一步皆是仪式感。缓步归家的入户门厅,深邃格调下饰以自然景观,铺陈出质朴内敛的家宅气息,石材壁炉则平添了几许温馨,搭配造型简约的单椅,增加窗景、壁灯装饰,在实用功能中演绎生活美学。

02.客 厅

协调空间布局,一层将功能聚焦到社交属性,灵活舒适的空间尺度,让居者在这方空间里有属于自己的慢生活。

客厅挑空,空间更开阔通透,让家从视觉到居住都更清爽舒适,成为整套别墅的亮点。一桌一椅,尽显匠心独运,静坐畅聊,雅幽清逸。大理石+木饰面电视墙,丰富层次,沉稳中亦有刚硬的张力感,过道墙用木饰面包裹,颜值高过渡也更加流畅;禅意山水沙发背景墙,以浅隐之笔墨,承载东方文雅,精美的狮子摆件立于矮几,自然鲜活,营造与功能空间契合的雅致之家。

沙发整体采用榫卯工艺,沉稳的乌金木与质感布艺、硬挺皮质组合搭配,内敛而儒雅,单人沙发线条圆润流畅,围合式摆放,轻松连接人与人之间的社交互动,细腻的软饰,搭配尺度巨大的吊灯,流露出新中式的清雅意蕴。

03.餐 厅

开放式餐厨承载生活的烟火气,石材、木饰面、皮质带来自然气息,以现代设计与中式元素的完美融合,叙述雅韵轻快的用餐氛围。

中式吊灯灯盘极具设计焦点,透露着现代摩登的独特,与餐厅的大理石餐桌形成呼应,营造出丰富的视觉层次;木饰面的柔和,搭配山水背景墙的轻盈线条,展现东方气质,充分表达出居者的高级生活品味。

04. 厨 房

厨房一体化定制设计,延伸的岛台与定制橱柜自然衔接,形成完美的功能组合。

靠窗位置增设的岛台,可用作早餐或下午茶区,自由与多元的生活方式,在四季美景更迭中,愈发有温情格调~木饰面吊柜呼应整体风格,两层开放式搁板与隐藏式储物相结合,玻璃柜门预埋灯线,既满足收纳需求又保持视觉通透,丰富了空间质感。


 05.长 辈 房

以不同层次的棕调晕染一室的沉静、松弛,家具的选择上,边角处都选择用弧形设计,防止磕碰的同时,弱化硬装线条;床头一侧定制悬浮式书桌,搭配舒适独特的单椅,满足居者阅读的需求,整墙胡桃木衣柜巧妙融入空间,搭配柔和光线,在实用功能中透露出稳重的现代化格调。

2F

 闲适生活

静待岁月安好、自洽融融


① 浇灌楼板,改造成开放式休闲区,满足休闲、健身、娱乐等功能,丰富生活乐趣;

② 两间次卧合并使用,改造为一间集睡眠、书房一体的卧室。

3F

 一枕清风

宁静舒适的安然画卷


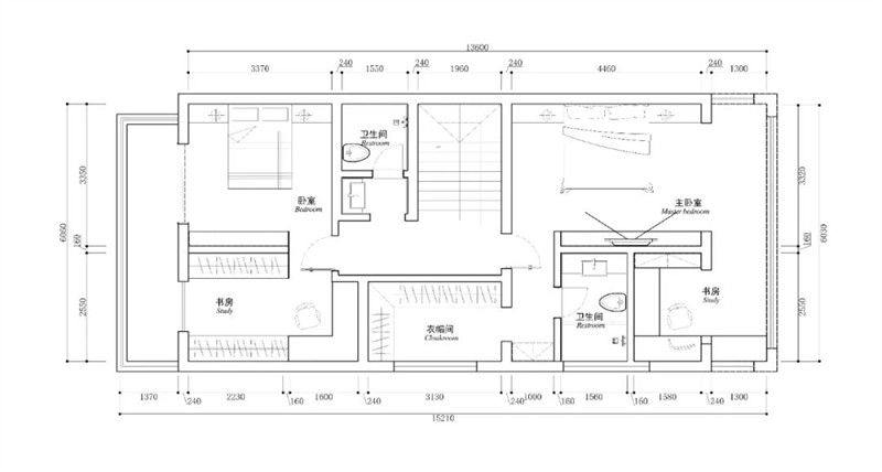
① 景观阳台纳入,扩充内部使用面积,一间储物间与主卧合并,整合为集书房、衣帽间、睡眠区、卫生间一体的舒适套房;

② 两间次卧合并,改造为一间集睡眠、书房一体的儿童房。

01.主 卧


景观阳台融入室内后,通过绿植角落的点缀,落地窗前放置的单人沙发桌几,无限拉近人与自然的距离,定制电视柜简洁大气,突出松弛休闲的生活方式。主卧采用舒适的配色、圆润的家具、精选的布艺面料,营造柔和、清雅之感,浅色花鸟背景墙配以暖色系大床,营造惬意自洽的睡眠氛围。

02.书 房

半开放书房,实现与主卧之间情绪的交流互通,书桌柜一体式设计,空间利用最大化,延续主卧风格配色,让空间更统一。

03.衣 帽 间

木饰面与玻璃柜门的穿插凸显生活的精致感,隐形灯线打造视觉亮点,大体积的柜体满足强大收纳功能,带来舒适体验。

04.儿童房

儿童房考虑到孩子的成长性,将两间次卧合并使用,改造为满足休息、学习、娱乐的多功能套房。木色配暖白色,温馨自然,打造纯粹干净的睡眠氛围,家具、挂画、玩具可爱活泼,从细节处去描绘天真烂漫的童年时光。

悬浮式书桌与柜体穿插,搭配质感棕色洞洞板,打造一方温暖、舒适、多趣的成长空间。

偷得浮生半日闲   隐逸静谧

设计师从“三代同堂、家的温馨”理念出发

以现代与传统穿插于空间中

通过软饰家具和自然景致融合回归纯粹

用大理石、木饰面和大量中式元素 

为空间引入自然生机和稳重雅趣

构筑舒适灵动、恬静温暖的闲适居所

要了解更多鲁班设计案例

想要了解更多家装设计风格

想要了解更多软装设计搭配

欢迎致电

0871-6339-0129

预约